
Canea es un complejo de 26 departamentos de 1 y 2 recámaras ubicado en la privilegiada zona con alta plusvalía de Temozón Norte, rodeado de servicios y amenidades como: centros comerciales, supermercados, restaurantes, hospitales, escuelas y farmacias; así como de fácil acceso al interior de la ciudad, el periférico y la carretera Mérida-Progreso.
Su diseño tiene como prioridad la comodidad, confort natural y relación con la naturaleza, a través de una distribución arquitectónica que busca la amplitud y funcionalidad, excelente ventilación e iluminación y aperturas hacia jardines o balcones, dependiendo del nivel en el que se encuentre el departamento.
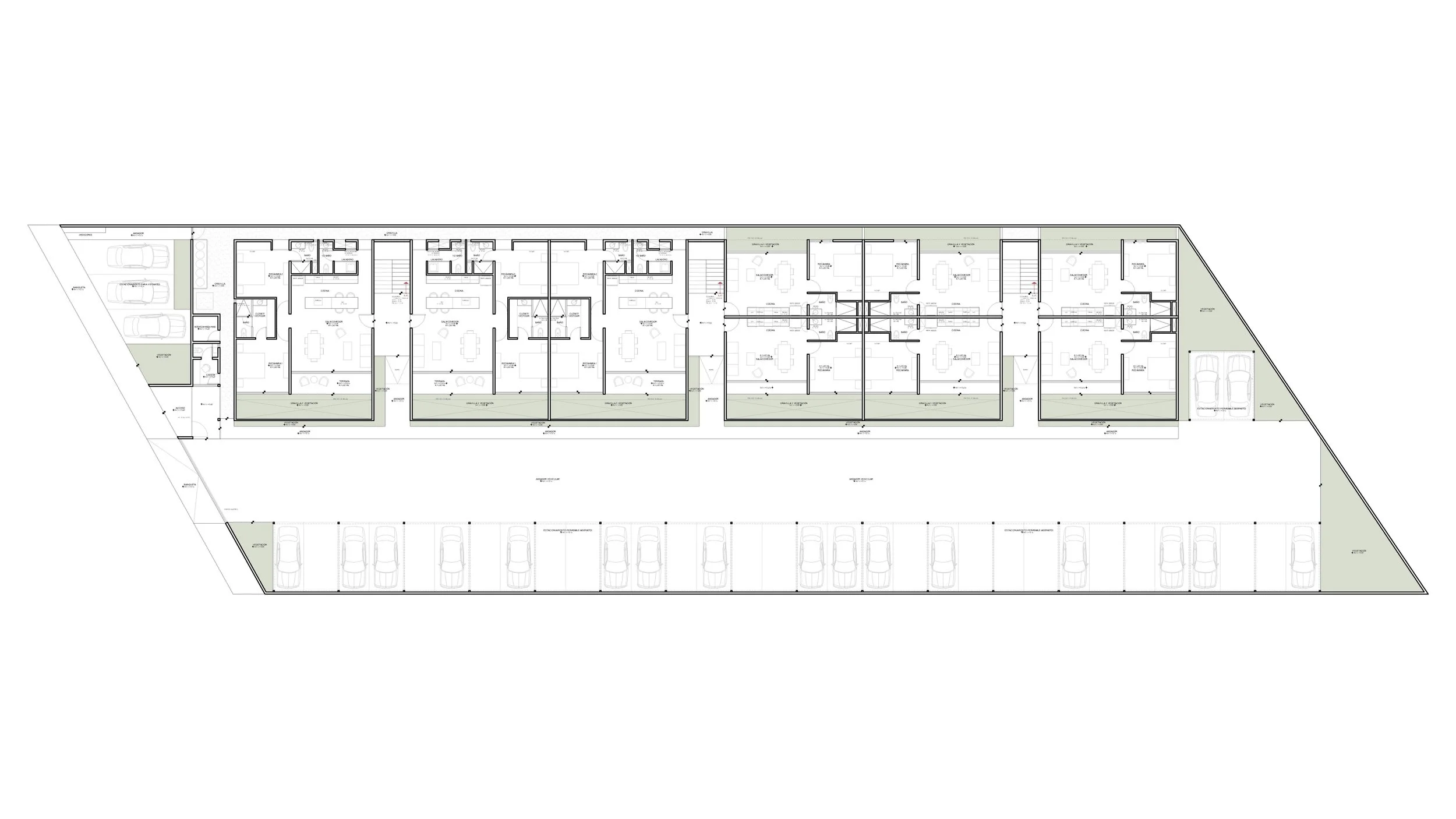
Plantas Arquitectónicas
Modelo “Garden 1R"
Modelo “Garden 2R"
Modelo “View 1R”
Modelo “View 2R”
Amenidades



Estatus: En Construcción