CASA CALADA

La “Casa Calada” se encuentra en la privada “Nadira”, un residencial privado al noreste de la ciudad de Mérida. Cuenta con 250 m2 de construcción en un terreno de 320 m2.
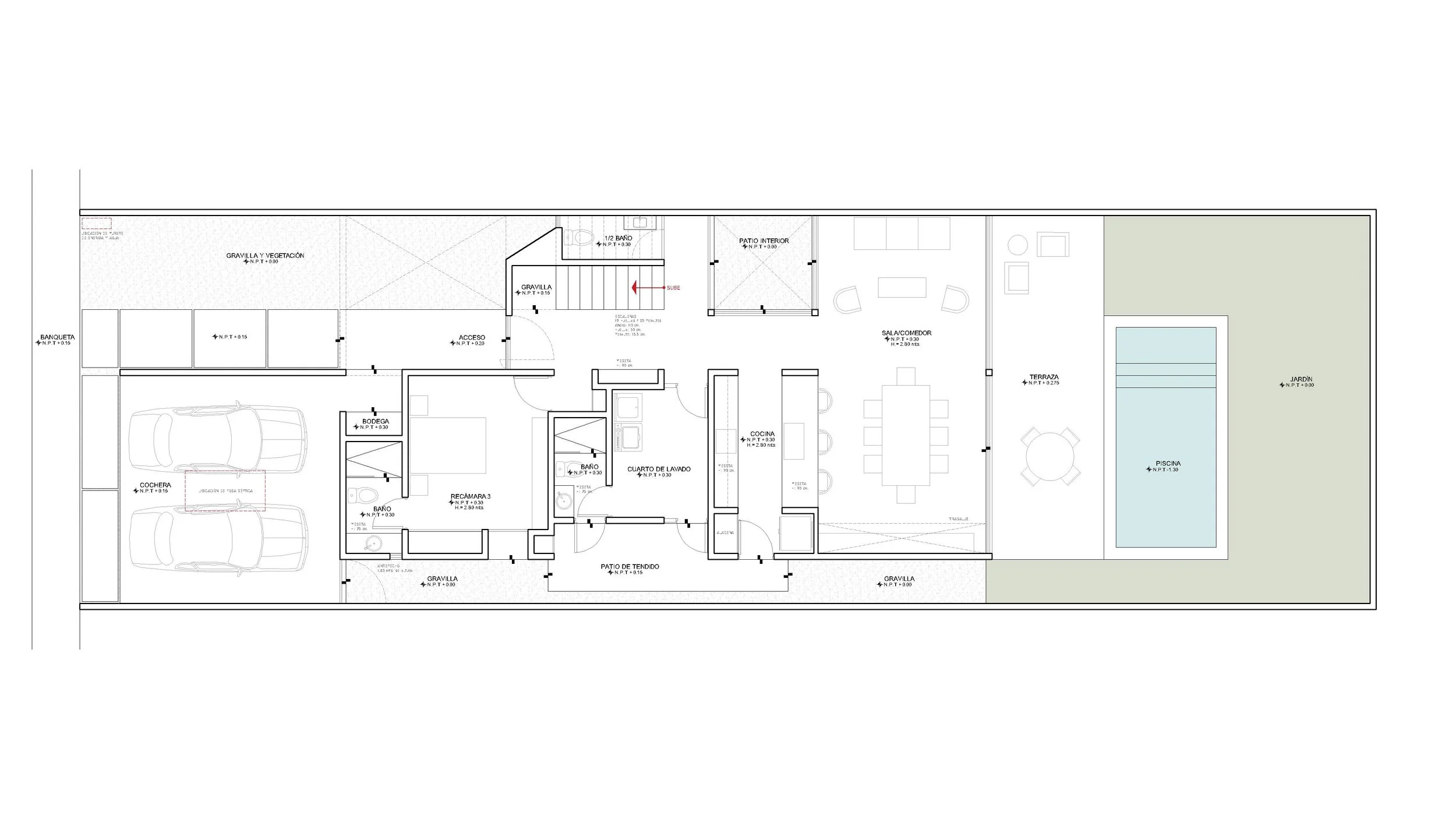
Su programa lo componen: 3 recámaras con baño completo (2 con clóset vestidor), recámara de servicio con área de lavado, sala - comedor, cocina con barra desayunadora, estancia familiar en planta alta, balcón en planta alta (acceso desde recámara principal), patio de tendido y cochera para 2 autos.
El diseño de la vivienda se basó en una búsqueda de la luz natural y del espacio exterior; posee una amplia terraza conectada a la alberca y jardín, un patio interior que rebosa de luz el vestíbulo y el área social, y un generoso balcón en planta alta con vista al patio.
Plantas Arquitectónicas




Estatus: Obra Terminada