CASAS ANGOSTAS

Las “Casas Angostas” son un conjunto de 4 townhouses en lotes de 5 metros de frente, aprovechando al máximo la superficie del terreno para el emplazamiento de las unidades.
A pesar de encontarse en lotes con frentes acotados, el diseño arquitectónico logra una vivienda con apertura espacial y mucha iluminación natural, gracias a su distribución del programa donde la planta baja, con la sala, comedor y cocina, funciona como un gran espacio abierto orientado hacia el patio y la vegetación exterior.
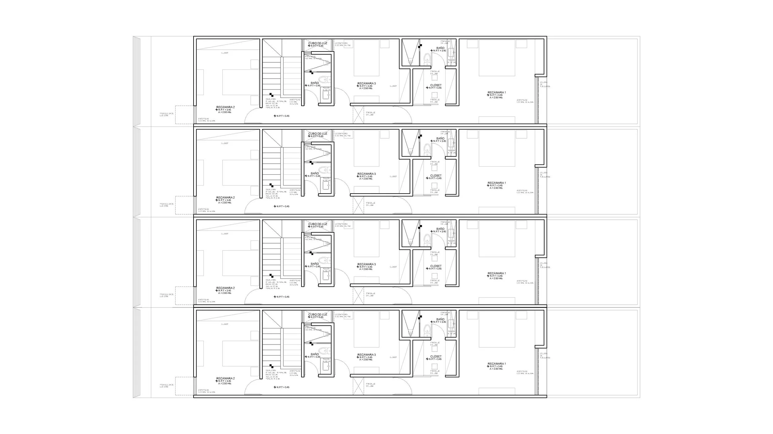
En la planta alta se encuentran 3 recámaras: una de ellas orientada al sur, otra de ellas iluminada y ventilada a través de un cubo de luz, y la recámara principal disfruta de la orientación norte, con vista al patio.
Plantas Arquitectónicas



Estatus: Por Iniciar Construcción